Este site utiliza cookies para permitir a mudança de língua e o armazenamento dos seus imóveis favoritos. Ao utilizar este site, concorda que o mesmo utilize cookies.

Moradia T4 Pronta Habitar

535.000€



Referência

MD-00691 A

Natureza

Venda

Tipo de Imóvel

Moradia

Subtipo de Imóvel

Moradia Geminada

Tipologia

T4

Estado

Novo

Certificado energético

A

Ano

2023


Distrito

Aveiro

Concelho

Aveiro

Freguesia

Aradas

Código Postal

3810


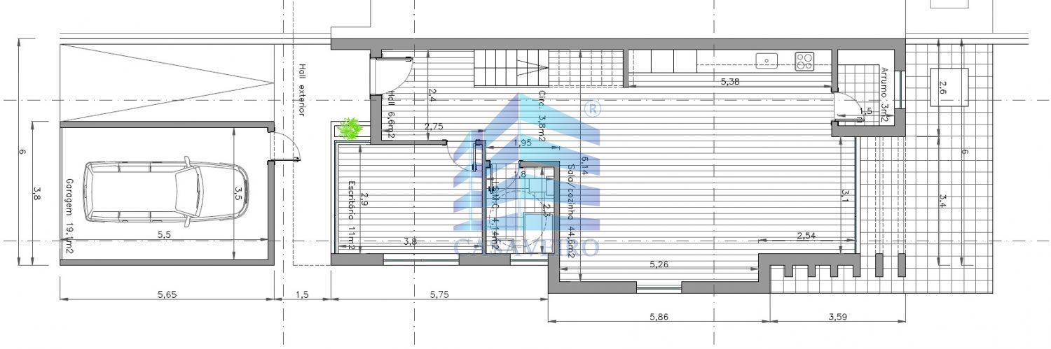
Área Útil

190 m2

Área Bruta

204.97 m2

Área de Terreno

585 m2

Partilhar



Contactar Imobiliária

*Preenchimento obrigatório
Ao clicar em 'Enviar', declara que aceita a nossa Política de Privacidade.
Fantástica Moradia T4 Geminada em Aradas – Conforto, Eficiência e Tranquilidade a 5 min de Aveiro

Procura o equilíbrio perfeito entre a tranquilidade residencial e a proximidade ao centro da cidade de Aveiro? 
Apresentamos esta moradia T4 em Aradas, Aveiro, ideal para famílias que privilegiam qualidade de vida, áreas generosas e modernidade.

Inserida numa zona residencial calma, esta moradia destaca-se pela sua excelente exposição solar e acabamentos de elevada eficiência.

A Casa dos Seus Sonhos, distribuída por 2 Pisos:
Piso Térreo (Zona Social e Funcional):
Open Space Moderno: Cozinha totalmente equipada integrada numa sala ampla com luz natural abundante.
Lazer Exterior: Acesso direto da sala para o jardim privado, perfeito para momentos em família.
Quarto no R/C: Ideal para escritório ou para quem tem mobilidade reduzida.
WC Completo: Com acabamentos contemporâneos.

Piso Superior (Zona Privada):
Suite Privativa: Um refúgio de conforto com casa de banho exclusiva.
Quartos Confortáveis: Dois quartos adicionais, ambos com roupeiros embutidos.
WC de Apoio: Casa de banho completa para servir os restantes quartos.

Espaço Exterior e Equipamentos:
Exterior: Jardim para desfrutar do ar livre, pátio e alpendre.
Estacionamento: Garagem fechada e um lugar de estacionamento adicional dentro da propriedade.
Alta Eficiência Energética: Equipada com bomba de calor para águas sanitárias e sistema de ventilo-convetores, garantindo o máximo conforto térmico com baixo consumo.

Localização Estratégica:
Viver em Aradas permite-lhe estar a um passo do centro de Aveiro, usufruindo de um ambiente mais sereno, com comércio, serviços e escolas nas proximidades.
Não perca esta oportunidade de viver com a qualidade que a Casaveiro lhe garante.
Agende já a sua visita!
Geral
ClimatizaçãoAr condicionado:Sim
ClimatizaçãoBomba de calor:Sim
CaixilhariaVidro Duplo:Sim
CaixilhariaEstores:Sim
GeraisMurada:Sim
GeraisNº de Escritórios:1
GeraisNº de Casas de Banho:3
GeraisNº de Terraços:1
GeraisLavandaria:Sim
GeraisArmário de roupa / closet:Sim
Luz NaturalMuito Iluminado:Sim
Ar CondicionadoCompleto:Sim
GaragemFechada Exterior:Sim
CozinhaPlaca:Sim
CozinhaForno:Sim
CozinhaExaustor:Sim
CozinhaMicro-ondas:Sim
CozinhaFrigorífico:Sim
CozinhaMáquina de lavar loiça:Sim
PavimentoPiso vinílico:Sim
Edificio
GeraisNº de Frentes :3
GeraisNº de Pisos:2
GeraisNº de Varandas:2
GeraisNº de Lugares de Estacionamento:1
GeraisNº de Garagens:1
IsolamentoAcústico:Sim
IsolamentoTérmico:Sim
EquipamentoJardins:Sim
EquipamentoVideo-Porteiro:Sim
Revestimento ExteriorCapoto:Sim

Este imóvel não tem áreas definidas.

Imóveis
Semelhantes

495.000€

Moradias T4 com piscina perto de Aveiro

495.000€

Aveiro / Aveiro / Oliveirinha


Ref: MD-00685

Ref: MD-00685

183.72 m2

4

3

Sim

535.000€

Moradia Pronta Habitar com Lugar de Garagem, ...

535.000€

Aveiro / Aveiro / Glória e Vera Cruz


Ref: MD-00644

Ref: MD-00644

110.9 m2

3

3

Sim

TÉRREA

780.000€

Moradia T3+1 em Santa Joana

780.000€

Aveiro / Aveiro / Santa Joana


Ref: MD-00675

Ref: MD-00675

238 m2

3

3